Hôtel logistique aux Ardoines

Un bâtiment-entrepôt intégré en milieu urbain, des activités maraîchères en toiture

L’activité logistique connaît aujourd’hui un rôle grandissant dans la compétitivité des entreprises, notamment par la gestion efficace des flux. Le pôle logistique doit être extrêmement fonctionnel et stimuler la dynamique de production, en renouvelant l’image de l’entreprise, tout en proposant des solutions environnementales viables à ses usagers et dans son contexte urbain. L’enjeu principal de ce projet était d’imaginer un bâtiment-entrepôt qui soit aussi un élément urbain riche, vertueux et intégré à son tissu. Nous avons choisi de faire de l’enveloppe une surface d’échange avec la ville - évolutive et vivante - et de la toiture une surface plantée dédiée à des activités maraîchères (un hectare d'agriculture urbaine gérée par un exploitant).

Hôtel logistique aux Ardoines hotel-logistique-sogaris-02-b

Nous choisissons de développer trois axes majeurs : contenir les nuisances au cœur de l’équipement, valoriser fortement l’aspect extérieur d'un bâtiment de logistique, intégrer des programmes supplémentaires décuplant la valeur d'usage du projet.

Hôtel logistique aux Ardoines hotel-logistique-sogaris-07-b
Hôtel logistique aux Ardoines hotel-logistique-sogaris-03-b
Hôtel logistique aux Ardoines hotel-logistique-sogaris-11-b

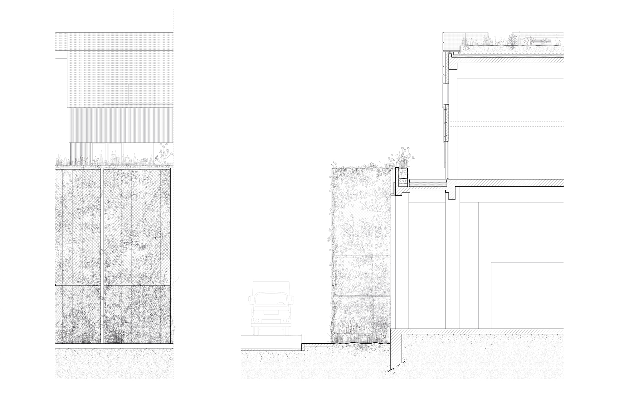
Pour compenser le gabarit et l’opacité des façades, nous imaginons une interface avec l’espace urbain : une bande de pleine terre ceinture l’équipement. Ce parc linéaire abrite une végétation dense dont la composition s’adapte aux orientations de chaque façade.

Hôtel logistique aux Ardoines hotel-logistique-sogaris-06-b
Hôtel logistique aux Ardoines hotel-logistique-sogaris-08-b

Sur le toit, une exploitation de 10 000 m2 d’agriculture urbaine contribuera à l’approvisionnement des habitants du futur quartier. Le pôle logistique devient ici un outil urbain qui dépasse sa fonction première pour se mettre au service des citadins.

Hôtel logistique aux Ardoines hotel-logistique-sogaris-13-b
Hôtel logistique aux Ardoines hotel-logistique-sogaris-10-b
Hôtel logistique aux Ardoines hotel-logistique-sogaris-05-b
Hôtel logistique aux Ardoines hotel-logistique-sogaris-04-b
Localisation

Vitry-sur-Seine (94)

Maîtrise d’ouvrage

GA Promotion pour Sogaris

Surface

40 000 m²

Équipe

Ingérop (TCE), Franck Boutté Consultants (HQE et Thermique), Bmf (Economie), CSD Faces (SSI), Batyom (Logistique), Atelier d’écologie Urbaine (Ecologie)

Coût

NC

Phase

Livré en 2024

Responsables projet

Mathieu Terme, Nicolas Jentellet, Tudor Neagu, Guillaume Cournut

Mission

Conception + suivi architectural

Programme

20 000 m² de logistique, 10 000 m² d’artisanat et petite industrie, 4 000 m² de tertiaire, 10 000 m² d’agriculture urbaine. 

Certification

HQE Bâtiment Durable niveau très performant

Photos

Takuji Shimmura