Housing and activities in Méridia district

A new district in Nice topped by a rooftop vegetable walk

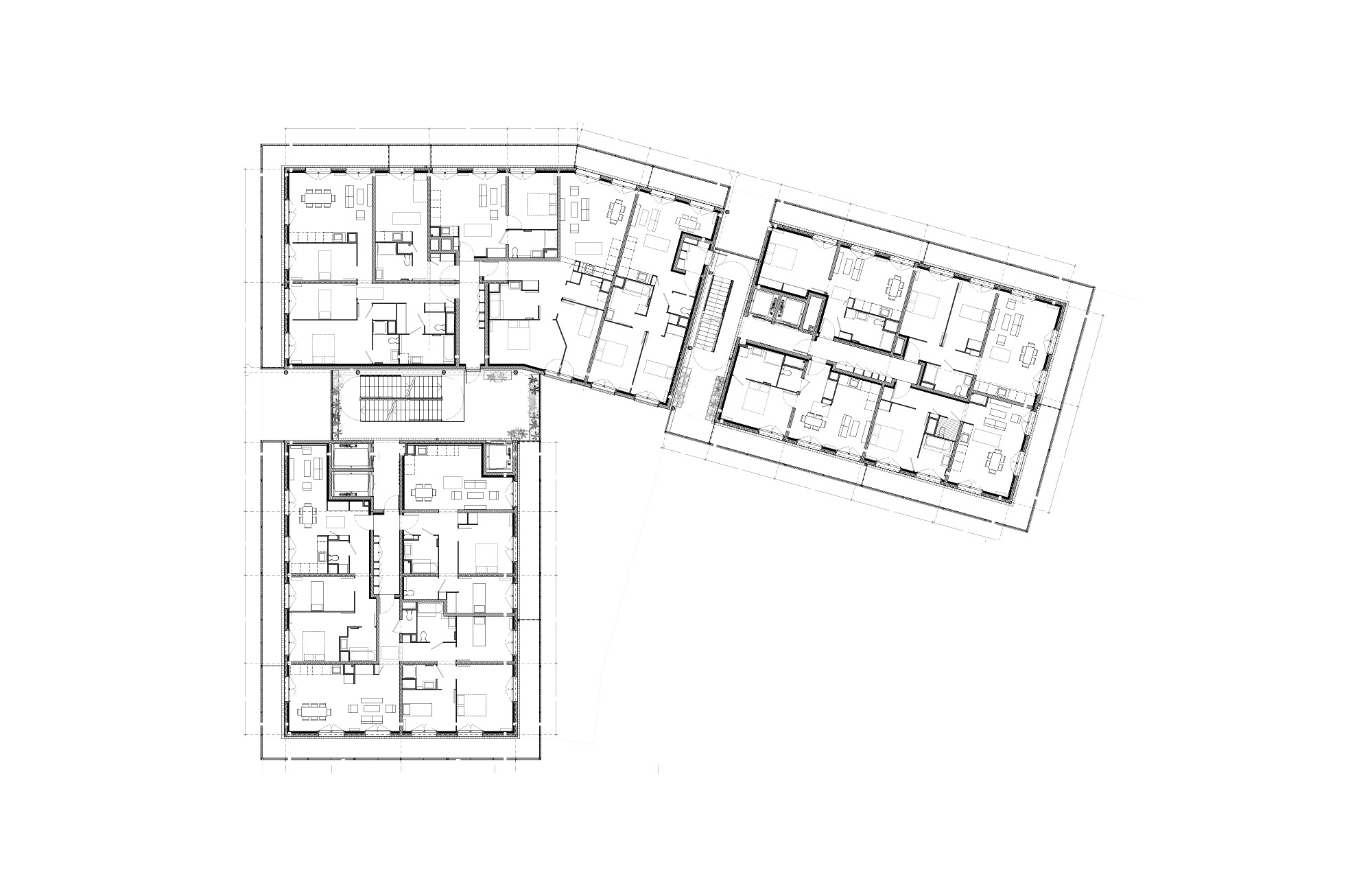
The mixed-use development is organized around the Méridia district square, an attractive new hub and a center of exchange for future users.Opposite each other, the two buildings we designed respond to each other on either side of the square, reinforcing the architectural identity of Nice by reinterpreting its codes.They are organized in volumes of different heights, connected by external gaps that allow views from the public space into the heart of the blocks, while giving rhythm to the linear facades. These gaps house the vertical circulations, naturally lit and ventilated, staging the ascent of the inhabitants in a journey punctuated by filters, as many thresholds of intimacy from the common space to the private.Most of the units are double or even triple, and all have wide balconies and full-height windows. Concrete is used here in a variety of finishes - smooth, sandblasted or glazed raw concrete - and the warm colors of the materials are reminiscent of those of the Nice palette.Last but not least, the buildings lining the square are covered with urban agriculture and offer a high walkway accessible to all. 

Housing and activities in Méridia district logements-quartier-meridia-nice-02

The communal landings are generously dimensioned, as places for residents to pass through and meet. They feature large planters and a cable system for climbing vegetation that provides shade and coolness in summer.

Housing and activities in Méridia district logements-quartier-meridia-nice-00
Housing and activities in Méridia district logements-quartier-meridia-nice-06
Housing and activities in Méridia district logements-quartier-meridia-nice-03

Overlooking the Méridia square, a system of footbridges links the roofs together. Intended for urban agriculture, these terraced gardens are inspired by the agricultural vocation of the Var plain, and are an educational tool that celebrates the authenticity and culinary art of Nice.

Housing and activities in Méridia district logements-quartier-meridia-nice-20
Housing and activities in Méridia district logements-quartier-meridia-nice-14
Housing and activities in Méridia district logements-quartier-meridia-nice-04
Housing and activities in Méridia district logements-quartier-meridia-nice-13
Location

Nice (06)

Client

Pitch Promotion, Eiffage Immobilier, SODES

Area

8,556 m² (13,000 m² for the macro-lot)

Team

Alain Faragou (landscape), Egis Bâtiment Mediterranée (structure, acoustics, economist), Ingerop, Elioth, G2I

Associate architects

Lambert Lenack (coordinator architect), Sou Fujimoto, ChartierDalix, Laisné-Roussel, Cino Zucchi, Anouk Matecki, Carta associates

Phase

Under construction, delivery in 2026

Project manager

Mathieu Terme, Jehanne Bouda

Mission

Complete

Program

148 social and ownership housing, offices, retail and urban agriculture

Certification

HEQ approach

Images

ChartierDalix