Offices facing the Bassins à flot

Offices and shops around a patio in a converted industrial site

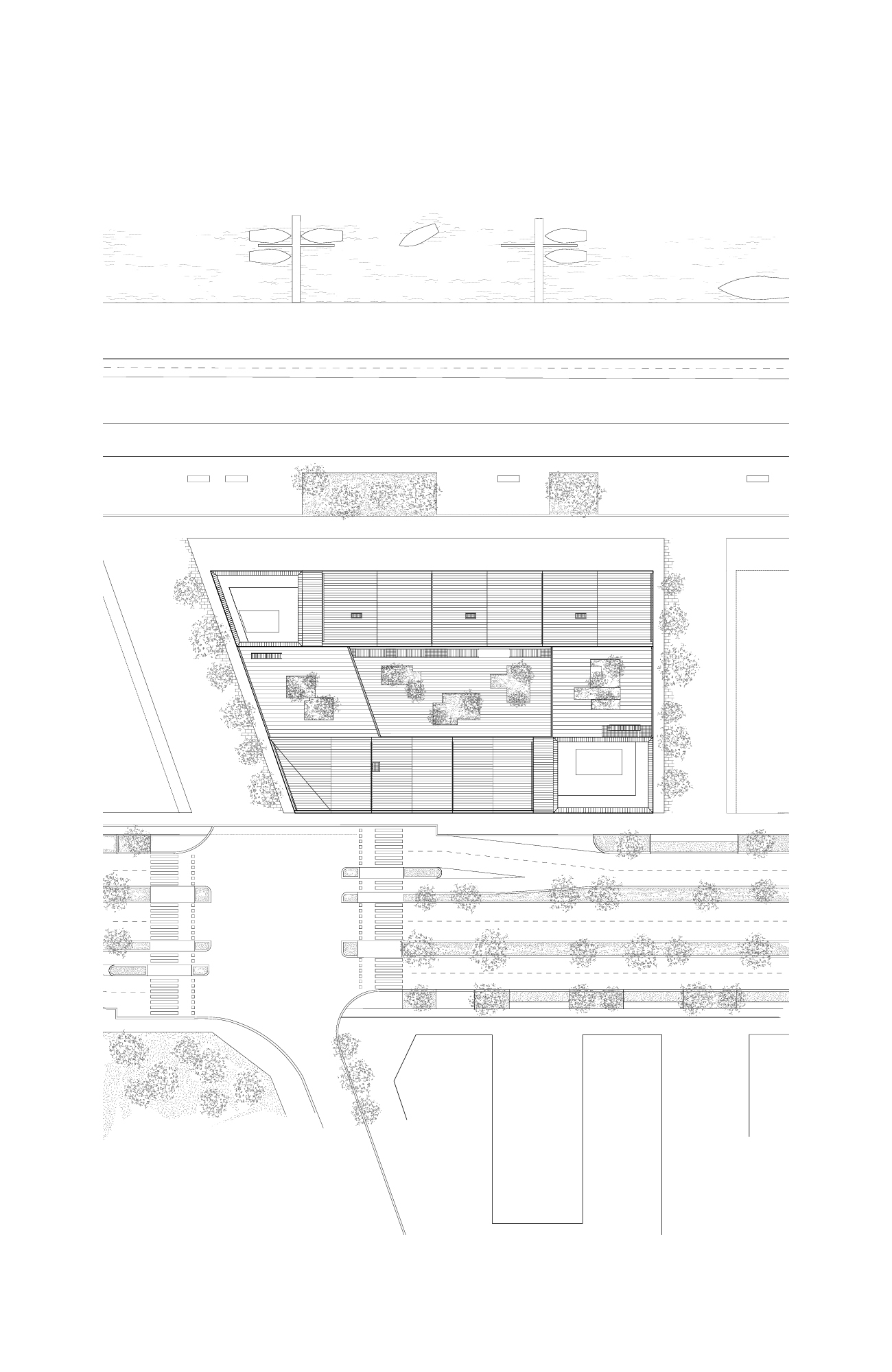
Located in the Bassins à flot district, a former port site, this office development has the particularity of accommodating shops on the ground floor and 70 parking spaces in the heart of the building (which are invisible from the street). The building is made up of three strips: an "urban" strip linked to the street, a strip linked to the "great landscape", facing the docks, and a central strip, which accommodates the outdoor spaces and in particular a common patio on the first floor. In the spirit of the site's industrial past, the building is clad in zinc, a raw material that covers the roof and facade while providing varied nuances to the twin buildings. Each of them is overlooked by an 8-storey tower which finishes in a lookout offering 360° views. The proportion of glazing and occultations vary according to the orientation of the main façades, allowing for optimal comfort of the work spaces and unobstructed views.

Offices facing the Bassins à flot bureaux-bassins-flot-bordeaux06
Offices facing the Bassins à flot bureaux-bassins-flot-bordeaux-30

The Bassins à flot are imbued with the spirit of harbor life, enhanced by striking figures in the landscape: cranes, barges, rails, silos. This immense open space in the heart of the city, at the intersection of the Bacalan and Chartrons districts, plays a central role in an overall major urban renewal project.

Offices facing the Bassins à flot bureaux-bassins-flot-bordeaux00
Offices facing the Bassins à flot bureaux-bassins-flot-bordeaux09
Offices facing the Bassins à flot bureaux-bassins-flot-bordeaux-31

The turrets introduce verticality to the horizontal silhouette of the district and provide views towards the basins, the Garonne river and the landmarks of the wider landscape (hillsides, Aquitaine bridge, churches). The building is clad in natural, raw zinc. The full-height fins reinforce the vertical lines and provide solar protection.

Offices facing the Bassins à flot bureaux-bassins-flot-bordeaux01
Offices facing the Bassins à flot bureaux-bassins-flot-bordeaux11
Offices facing the Bassins à flot bureaux-bassins-flot-bordeaux21

The exterior common terrace is located within the central band of vegetation in the building. The floor is made of wooden decking and the space is punctuated by planters in strips, which transform into seats to offer users places to relax outside.

Offices facing the Bassins à flot bureaux-bassins-flot-bordeaux23
Offices facing the Bassins à flot bureaux-bassins-flot-bordeaux22
Offices facing the Bassins à flot bureaux-bassins-flot-bordeaux20
Offices facing the Bassins à flot bureaux-bassins-flot-bordeaux02
Location

Bordeaux (33)

Client

Fayat Immobilier, Pitch Promotion

Area

9,890 m²

Team

Barbanel (fluids), IDB (acoustic), VPEAS (economist), Socotec (SPS coordination), Khephren Ingénierie (structure), Alto Step (VRD), Builders et Partners (MOX/OPC)

Cost

€16,5 M before tax

Phase

Delivered in september 2021

Project manager

Mathieu Terme, Jehanne Bouda

Mission

Conception, visa, architectural supervision, conformity

Program

8,390 m² office complex, 1,500 m² of retail space, and 70 parking spaces

Certification

Breeam certification - Well

Photos

Takuji Shimmura